SAINT ETIENNE APPARTEMENT BAS PREFECTURE
Description :
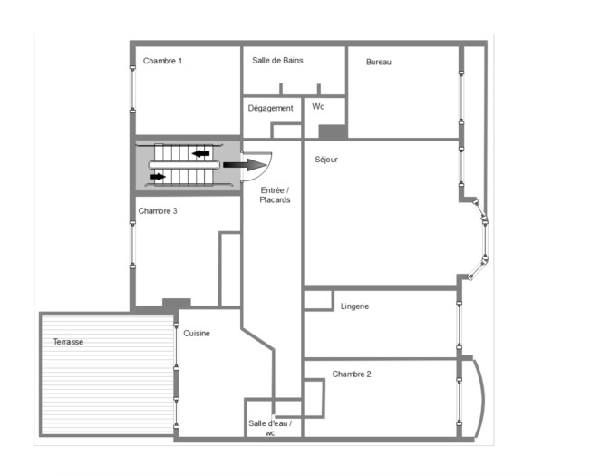
Appartement de 163,78 m2 dans immeuble Art Déco. Séjour de 44,4 m2 avec coin bureau, cuisine équipée ouvrant sur terrasse de 23,70 m2 coté ouest. 4 chambres, 2 salles de bains. Caves & Garage. Les informations sur les risques auxquels ce bien est exposé sont disponibles sur le site Géorisques : www.georisques.gouv.fr
Votre première visite en vidéoconférence.
Diagnostic de Performance Énergétique
Géolocalisation :
| Ville | Saint-Etienne |
|---|---|
| Quartier | Préfecture |
| Surface habitable | 163 m² |
| Surface loi Carrez | 163,78 m² |
| Surface terrain | 23 m² |
| Nb de pièces | 7 |
| Nb de chambres | 4 |
| Exposition | Est-ouest |
| Étage | 2 |
| Nombre d'étages | 4 |
| Nb de salles de bains | 2 |
| Nb de wc | 2 |
| Type de chauffage | Collectif |
| Coût chauffage | 2 280 € /an |
| Charges | 4 216 € /an |
| 351,33 € /mois | |
| 2,16 € /m²/mois | |
| Taxe foncière | 2 968 € /an |
| 247 € /mois | |
| 18 € /m²/an | |
| Prix | 250 000 € |
| Procédure en cours | Néant |
| Nombre de lots | 16 |
| Réf | V1215 |
Détails :
- Ascenseur
- Cave
- Garage
- Balcon
- Cuisine équipée
- Parquets
- Bureau
- Terrasse
- Honoraires Charge Vendeurs



