CONDITION DES SOIES
Description :
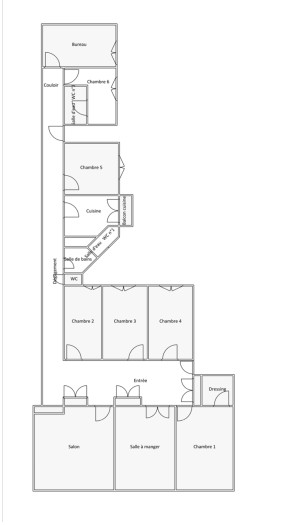
Appartement Bourgeois de 243,97 m2. Double réception de 50,86 m2, parquets, cheminées, boiseries. Cuisine avec balcon. 6 chambres , bureau, 3 bains. 2 garages, parking. Cave et grenier.
Les informations sur les risques auxquels ce bien est exposé sont disponibles sur le site Géorisques : www.georisques.gouv.fr
Votre première visite en vidéoconférence.
Clip-view :
Diagnostic de Performance Énergétique
Géolocalisation :
| Ville | Saint-Etienne |
|---|---|
| État du bien | Rénové |
| Surface habitable | 245 m² |
| Surface loi Carrez | 243,97 m² |
| Nb de pièces | 9 |
| Nb de chambres | 6 |
| Exposition | Est-ouest |
| Étage | 2 |
| Nombre d'étages | 4 |
| Nb de salles de bains | 3 |
| Nb de wc | 2 |
| Type de chauffage | Collectif |
| Coût chauffage | 3 872 € /an |
| Charges | 6 159 € /an |
| 513,25 € /mois | |
| 2,09 € /m²/mois | |
| Taxe foncière | 3 154 € /an |
| 263 € /mois | |
| 13 € /m²/an | |
| Prix | 239 000 € |
| Nombre de lots | 12 |
| Réf | V1156 |
Détails :
- Ascenseur
- Cave
- Garage
- Balcon
- Cuisine équipée
- Parquets
- Cheminées
- Parking
- 2 Réceptions
- Bureau
- Vue dégagée
- Honoraires Charge Vendeurs



